Proposition préliminaire et spécifications pour la conversion d’une grange


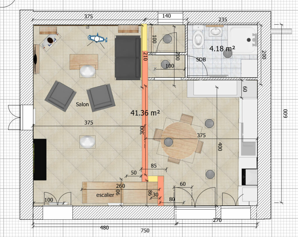
Rouge/orange = Linteau
Jaune = Mur/Poteau de Soutien
Remarques
- Le mur/poteau de 2 m x 20 cm au fond de la pièce (renforcé sous l’extrémité de la poutre) permet de raccourcir la poutre principale (3 m), créant ainsi une ouverture de 3 m entre la cuisine et le salon.
- Le poteau plus petit (80 cm x 20 cm) allège le poids de la poutre principale (en n’étant pas fixé au mur extérieur), répartissant ainsi le poids au sol.
- La poutre plus courte, renforcée verticalement (en bas de la cage d’escalier), permet de gagner de l’espace dans le salon en rapprochant la cage d’escalier vers l’entrée principale. Ceci permettrait également d’avoir une escalier plus large (idéalement 2,60 m, mais jusqu’à 3 m).
- Un poteau de 20 cm x 20 cm x 2,40 m pourrait soutenir l’extrémité de la poutre courte, s’il n’est pas fixé au mur extérieur principal.
- Les deux poutres supporteraient les poutrelles latérales de plancher de 3,75 m.
Fenetres
Porte-fenêtre bois H.205 x l.120 cm ouvrant à la française 2 vantaux Pin x 2. Largeur totale 240cm
1. Structure : Le Poteau (30 cm) et l’Imposte (10 cm)
Avant de toucher aux portes, vous devez préparer le cadre qui va les recevoir.
- Le Meneau Central (30 cm) : * Fabriquez une ossature avec deux poteaux en pin de 70 x 70 mm espacés.
- Habillez-les avec des planches de pin de 18 mm pour obtenir une largeur finie de 30 cm.
- Fixation : Utilisez des équerres de charpente robustes au sol et au plafond.
- L’Imposte Haute (10 cm) :
- Fixez un bastaing de section 100 x 70 mm sur toute la largeur (270 cm).
- Elle doit être parfaitement de niveau pour que les portes ne frottent pas.
2. Fabrication des Soubassements (Le “Sandwich”)
C’est l’étape cruciale pour masquer le bas du verre. Vous devez fabriquer 4 panneaux identiques (2 pour l’intérieur, 2 pour l’extérieur).
- Le Panneau : Coupez du contreplaqué CTBX (Marine) de 10 mm aux dimensions de la vitre du bas (environ 110 x 48 cm).
- Le Décor : Collez des baguettes (champlats) en pin sur le pourtour du panneau pour créer le relief “mouluré”.
- La Peinture : Peignez impérativement les 4 faces et les tranches avant la pose pour éviter que le bois ne travaille avec l’humidité.
- La Pose : * Appliquez un cordon de silicone neutre sur le pourtour du panneau extérieur.
- Plaquez les deux panneaux (intérieur/extérieur) contre le verre.
- Fixation : Vissez à travers le cadre en bois de la porte (le montant vertical) pour serrer le “sandwich”. Ne jamais visser dans le verre.
3. Pose des Croisillons (Petit bois)
Pour obtenir l’effet “6 carreaux par vantail” visible sur la photo :
- Achat : Achetez des profilés “petit bois” en pin (souvent autocollants ou à poser avec du double-face haute performance).
- Mesures : Divisez la hauteur restante de votre vitre par 3 et la largeur par 2 pour obtenir des carreaux réguliers.
- Découpe : Utilisez une scie à onglet manuelle pour des coupes à 90° parfaites.
- Pose : * Nettoyez le verre à l’alcool à brûler.
- Posez les montants verticaux d’abord, puis les traverses horizontales.
- Faites de même à l’extérieur pour une finition haut de gamme.
4. Finitions Finales
- Étanchéité : Faites un joint silicone silicone entre votre poteau de 30 cm et les cadres des portes.
- Harmonisation : Passez une dernière couche de lasure ou de peinture sur l’ensemble (Portes + Poteau + Imposte) pour que les différentes essences de bois (Pin des portes vs Pin du poteau) ne se voient plus.
Instructions de Pose : Ouverture de Grange (270 cm)
Projet : Installation de deux porte-fenêtres en pin (120 cm chacune) de part et d’autre d’un poteau central de 30 cm.
1. Vérification Cruciale des Cotes (Tolérance Zéro)
L’ouverture totale est de 270 cm ($120 + 30 + 120$). Il n’y a aucun jeu latéral pour le réglage.
- Aplomb : Le poteau central et les tableaux en pierre doivent être parfaitement verticaux. Si un mur “pousse”, le cadre ne rentrera pas.
- Niveau : Le seuil béton doit être parfaitement plat. Toute bosse empêchera l’alignement des deux menuiseries.
- Action : Si l’ouverture fait moins de 270 cm à un endroit, il faudra raboter légèrement le poteau central avant la pose.
2. Étanchéité et Protection du Support
- Seuil : Appliquer une membrane d’étanchéité ou un lit de mastic polyuréthane sur toute la largeur du seuil avant de poser les dormants.
- Compriband : Utiliser une bande de mousse imprégnée (type Compriband) sur la périphérie extérieure pour assurer l’étanchéité à l’air et à l’eau, car le joint de silicone sera très fin.
3. Fixation des Dormants (Cadres)
- Positionnement : Caler les cadres sans les ouvrants pour vérifier l’équerrage (les diagonales doivent être identiques).
- Fixation Latérale : Utiliser des vis de cadre de 120 mm.
- Côté maçonnerie : Percer et cheviller dans la pierre/parpaing.
- Côté poteau : Fixation directe dans le bois du poteau.
- Points de fixation : Minimum 3 points par montant (haut, milieu, bas à 20 cm des angles). Attention : Ne pas serrer excessivement pour ne pas cintrer le bois du dormant.
4. Réglage des Ouvrants
- Charnières 3D : Une fois les vantaux posés, utiliser les vis de réglage des fiches pour :
- Ajuster la hauteur (jeu en bas).
- Ajuster le recouvrement central pour que la fermeture soit fluide.
- Vitrages : Si les vitrages sont livrés à part, utiliser des cales de vitrage pour “titrer” les vantaux et éviter qu’ils ne s’affaissent avec le temps.
5. Finitions Obligatoires (Traitement du Pin)
- Protection : Le pin est une essence sensible. Le menuisier doit appliquer une lasure de protection ou une peinture de finition sur les 6 faces (y compris le dessous et le dessus des cadres) immédiatement après la pose pour éviter que le bois ne travaille avec l’humidité de la grange.
- Calfeutrement : Terminer par un joint de finition périphérique au mastic élastomère pour assurer la jonction propre entre le bois et la pierre.
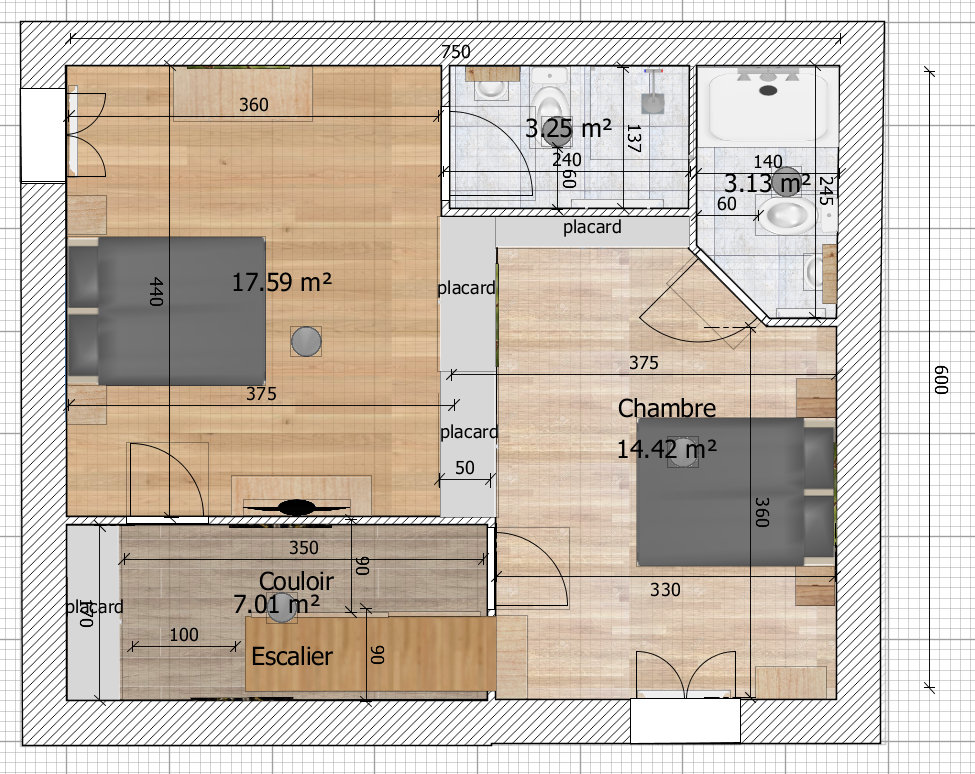
Aménagement à l’étage



Premier etage

Nouvelle ouverture – remarques :
Dans notre demande de permis de construire, nous proposons une nouvelle ouverture au premier étage, en façade du bâtiment (voir images en haut de cette page).
Cette proposition a été jugée acceptable lors de nos échanges préliminaires avec Bâtiments de France.
Pourquoi deux salles de bains ?
- Dans cette configuration, nous n’avons pas besoin de couloir central, ce qui libère de l’espace dans les chambres pour les placards, permettant une séparation phonique entre les deux chambres.
- Une configuration avec un couloir central obligerait à placer la porte de la chambre de gauche près de l’entrée de la salle de bains- nous souhaitons que la porte de la chambre se trouve sur le palier en haut de l’escalier.
- Le surcoût lié à une deuxième salle de bains est acceptable compte tenu des avantages de la configuration proposée.
- L’agencement simplifie notamment le réseau de plomberie.
- Il y a une salle de bains à usage général au rez-de-chaussée.
Note d’Instruction : Implantation de l’Escalier et Spécifications Structurelles
À l’attention de l’entreprise de gros œuvre / Maître d’œuvre
Suite à nos échanges concernant l’implantation de l’escalier et le renforcement structurel du rez-de-chaussée, nous confirmons notre choix pour un positionnement en zone d’entrée (partie avant gauche du plan) et précisons les exigences pour les ouvrages en béton armé.
Ce choix est définitif et repose sur une volonté d’optimisation architecturale, thermique et structurelle détaillée ci-après :
1. Gestion des Flux et Zoning (Arguments Fonctionnels)
- Indépendance et Intimité du Salon : Nous refusons que le salon devienne une zone de passage permanente (effet “couloir”). En plaçant l’escalier près de l’entrée, le salon reste un espace clos, paisible et préservé des allées et venues vers l’étage.
- Création de Zones Distinctes : Cette implantation permet de marquer une séparation claire entre la cuisine (zone active) et le salon (zone détente), tout en conservant un ouverture de 3m entre les pieces.
- Discrétion de l’Accès à l’Étage : L’emplacement près de l’entrée permet aux occupants ou aux invités de monter à l’étage de manière discrète, sans traverser l’espace de vie principal ou interrompre les activités dans le salon.
- Nous proposons un canapé-lit dans le salon pour les invités qui passent la nuit. Nous ne souhaitons pas qu’ils soient dérangés par les personnes traversant le salon pour accéder un escalier menant au deuxième étage.
- À l’avenir, nous pourrions souhaiter utiliser le salon comme un espace combinant chambre et salon (lorsque nous ne pourrons plus utiliser l’escalier). Par conséquent, le salon ne peut pas servir de couloir pour permettre aux invités d’accéder à l’étage.
- Propreté et Hygiène : L’accès direct depuis le hall d’entrée limite la propagation des poussières extérieures à travers tout le rez-de-chaussée. Le “parcours de marche” vers l’étage est réduit au minimum.
- Nous ne souhaitons pas créer une autre ouverture en façade. Nous disposons déjà d’une ouverture que nous voulons utiliser pour la chambre. Un escalier à l’arrière nécessiterait la création d’une nouvelle ouverture, ce qui engendrerait des travaux et des dépenses supplémentaires.
- Il y a un conduit de cheminée derrière le mur du fond que nous souhaitons utiliser. Un escalier à l’arrière nous en empêcherait.
2. Spécifications Techniques et Structurelles
- Utilisation des Ouvertures Existantes : Cette configuration a été étudiée pour s’aligner avec les ouvertures actuelles du premier étage. Elle évite toute modification de façade ou création de nouvelles baies.
- Dimensions de l’Escalier : Hauteur à franchir 240 cm / Reculement 240 cm (12 hauteurs de 20 cm, Giron de 21,8 cm). L’échappée de tête doit être de 2,00 m minimum.
- Murs Porteurs et Appuis (Bearings) : * Les linteaux et poutres de renfort doivent impérativement reposer sur des murs en blocs à bancher (blocs coffrants béton) avec chaînages verticaux renforcés.
- Longueur d’appui : Chaque linteau/poutre doit disposer d’un appui (sommier) de 25 cm minimum de chaque côté.
- Les zones d’appui devront être coulées en béton plein avec armatures de liaison.
- Poteau de Soutien : Un poteau en béton armé (section 20×20 minimum) est requis à l’angle de la poutre centrale (jonction des linteaux rouges) pour supporter les charges concentrées du plancher haut.
3. Plancher et Réseaux
- Plancher Hourdis : Configuration en poutrelles-hourdis polystyrène avec chevêtre renforcé pour la trémie en zone d’entrée.
- Plomberie : L’escalier en façade avant libère le mur Nord pour le passage vertical des colonnes d’évacuation des deux salles d’eau de l’étage, facilitant le raccordement gravitaire vers les réseaux existants.
Fiche Technique : Structure et Aménagement Étage
Projet : Rénovation globale – Création d’un étage sur plancher poutrelles-hourdis.
Dimensions : 7,50 m x 6,00 m.
1. Structure Porteuse (RDC)
Le mur central est remplacé par un système de poutres (linteaux) pour ouvrir l’espace Salon/Salle à manger.
- Poutre Principale (Rouge) : Portée de ~3,40 m. Doit supporter la charge du plancher haut (Poutrelles + Hourdis Polystyrène + Table de compression).
- Dimensionnement préconisé : Section 20×30 cm (HT) ou HEB 180/200 selon calcul de charge.
- Point Critique : L’angle rentrant près de l’escalier (jonction des deux linteaux rouges) doit impérativement reposer sur un poteau en béton armé (ou poteau acier) relié aux fondations/dalle du RDC.
2. Plancher et Trémie (Escalier)
- Type de plancher : Poutrelles-hourdis polystyrène.
- Trémie : Longueur 2,40 m / Largeur 0,90 m.
- Sens des poutrelles : Les poutrelles doivent être posées parallèlement à l’escalier (Est-Ouest).
- Consigne : Renforcer la rive de la trémie par une poutrelle doublée côté Salon pour compenser l’absence d’appui intermédiaire. Un chevêtre de finition sera coulé à l’arrivée de l’escalier pour liaisonner le plancher à la poutre centrale.
3. Aménagement Étage
- Cloisonnement : Utilisation exclusive de cloisons sèches (type placostyle 72/48) pour limiter la charge permanente sur le nouveau plancher.
- Plomberie : Les deux salles d’eau (3,14 m² et 3,09 m²) sont positionnées au nord, au-dessus de la zone technique/SDB du RDC.
- Prévoir une gaine technique unique pour les descentes EU/EV (Ø 100 mm) et les alimentations.
- Prévoir un siphon de sol extra-plat pour les douches à l’italienne afin de ne pas trop surélever la chape.
4. Escaliers (Calcul Blondel)
- Hauteur franchie : 240 cm.
- Reculement : 240 cm.
- Marches : 12 hauteurs de 20 cm. Giron de 21,8 cm.
- Échappée : Vérifier que le linteau rouge transversal ne gêne pas l’échappée de tête (minimum 200 cm au passage).
Spécifications Techniques : Linteau Béton Armé (Portée 3m)
Structure :
- Section du linteau : 20 cm (largeur) x 30 cm (hauteur).
- Appuis : Minimum 25 cm de chaque côté sur le pilier et le mur.
- Béton : Dosé à 350 kg/m³ (C25/30), vibré après coulage.
Armature :
- Aciers filants (bas) : 3 x HA12 ou HA14 (acier haute adhérence).
- Aciers filants (haut) : 2 x HA10.
- Cadres de liaison : HA6 avec espacement de 15 cm (réduit à 10 cm au niveau des appuis).
Avertissement Important : Un plancher béton est extrêmement lourd (env. 250-300 kg/m²). Je vous conseille vivement de faire valider ce calcul par un bureau d’études structures (BET) ou votre maçon qualifié, car une erreur sur une portée de 3m peut entraîner des désordres structurels graves.

Remarques concernant les escaliers
Exigences relatives à l’escalier :
- L’escalier doit être orienté de gauche à droite, dans le même sens que les poutrelles.
- Il doit être situé à proximité de la porte d’entrée.
- Il doit être aussi discret que possible, tout en servant de séparation (3 m de large) entre la cuisine et le salon.
- Il ne doit pas trop empiéter sur l’espace de la cuisine.
- Il ne doit pas empiéter sur l’espace de la salle de bain du rez-de-chaussée.
- Il doit laisser de l’espace dans le salon, sans être trop près de la fenêtre.
- Sa longueur doit être aussi réduite que possible (3 m maximum, 2,60 m si possible), tout en respectant les normes de construction et le confort.
- Il doit être confortable d’utilisation.
- Il doit permettre un accès discret à l’étage sans perturber les activités du salon, le sommeil des invités, etc.
Justification du Dimensionnement 240 x 240 (Loi de Blondel)
Nous avons validé les dimensions de l’escalier pour un encombrement optimisé (Reculement = Hauteur). Bien que compact, cet escalier respecte parfaitement les standards de confort de la Loi de Blondel :
- Hauteur à franchir : 240 cm.
- Reculement (Longueur au sol) : 240 cm.
- Nombre de marches : 12 hauteurs de 20 cm.
- Giron (G) : 21,8 cm.
- Calcul de confort : $2H + G = (2 \times 20) + 21,8 = \mathbf{61,8 \text{ cm}}$.
Le résultat de 61,8 cm se situe idéalement dans la plage de confort standard (entre 60 et 64 cm). Pour optimiser le confort de descente, nous demandons la réalisation d’un nez de marche de 3 cm.
Fiche Technique : Escalier Standard Optimisé (240 x 240)
À l’attention du constructeur / menuisier
Voici les spécifications pour un escalier droit optimisé, respectant un équilibre parfait entre confort et encombrement au sol.
1. Dimensions Globales
- Hauteur totale à franchir : 240 cm
- Reculement au sol : 240 cm
- Nombre de hauteurs : 12
- Nombre de girons (marches) : 11
2. Calcul des Marches (Loi de Blondel)
- Hauteur de marche (R) : 240 / 12 = 20 cm
- Giron (G) : 240 / 11 = 21,81 cm
- Pas de foulée (2R + G) : (2 x 20) + 21,81 = 61,81 cm
Note technique : Ce résultat de 61,8 cm est quasiment idéal (la cible parfaite étant 62-63 cm). L’escalier respecte scrupuleusement les normes de sécurité résidentielles.
3. Recommandations de Fabrication
- Nez de marche : Pour cette configuration, il est conseillé de prévoir un nez de marche de 3,5 cm. Cela donne une profondeur de marche réelle de 25,3 cm, ce qui est très confortable pour le pied.
- Échappée de tête : Avec un reculement de 240 cm, l’escalier est légèrement plus compact ; merci de valider que l’ouverture de la trémie permet un passage libre de 200 cm.
- Matériaux : Marches de 30 mm minimum pour garantir la rigidité de l’ensemble.
Pourquoi ce choix est le bon pour vous :
- Le “Pas de foulée” : À 61,8 cm, on ne sent pas l’effort. C’est le rythme naturel d’une marche d’escalier standard.
- Gain de place : Vous libérez de l’espace dans la pièce du bas sans sacrifier la sécurité.
- Esthétique : Visuellement, un escalier dont la hauteur égale la longueur au sol est très équilibré.
Fiche Technique : Escalier en Bois – reculement de 260 cm au sol (Hauteur 240 cm)
À l’attention du constructeur / menuisier
Voici les spécifications modifiées pour une hauteur à franchir réduite à 240 cm. Nous conservons la limite de reculement de 260 cm au sol.
1. Dimensions Globales
- Hauteur totale à franchir : 240 cm
- Reculement maximum au sol : 260 cm (Limite non négociable)
- Nombre de hauteurs : 12
- Nombre de girons (marches) : 11
2. Calcul des Marches (Loi de Blondel)
- Hauteur de marche (R) : 240 / 12 = 20 cm
- Giron (G) : 260 / 11 = 23,63 cm
- Pas de foulée (2R + G) : (2 x 20) + 23,63 = 63,63 cm
Note technique : Ce ratio est parfait. Un pas de foulée de 63,6 cm est exactement au centre de la norme de Blondel (60-64 cm). L’escalier sera extrêmement confortable et sécurisé.
3. Détails de Conception
- Nez de marche : Prévoir un débord de 3 cm (profondeur de marche totale : 26,63 cm).
- Angle : Environ 40° (pente standard résidentielle).
Pourquoi cette version est meilleure ?
En passant à 240 cm de hauteur :
- L’effort est moindre : Monter 20 cm au lieu de 20,8 cm réduit la fatigue.
- Le rythme est naturel : Le pas de foulée de 63,6 cm correspond exactement à la marche naturelle d’un adulte.
- Gain de sécurité : Avec le même reculement (260 cm), l’escalier est moins pentu, ce qui est rassurant pour les enfants ou les personnes âgées.
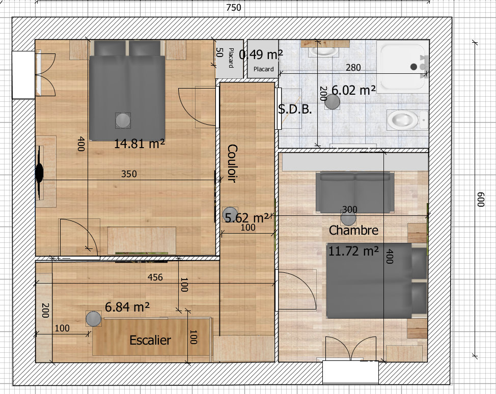
Aménagements alternatifs à l’étage

Couloir central
Un couloir central ne nécessiterait qu’une seule salle de bains.
Accès plus direct à la salle de bains
Possibilité d’une deuxième porte dans la chambre de droite pour un accès plus direct à la salle de bains, tout en conservant un accès à la chambre depuis le palier, à droite en haut de l’escalier.
Une configuration avec un couloir central obligerait à placer la porte de la chambre de gauche près de l’entrée de la salle de bains- nous souhaitons que la porte de la chambre se trouve sur le palier en haut de l’escalier.
Salles de bains plus spacieuses (1)


Salles de bains plus spacieuses (2)













































